Skip to content Skip to sidebar Skip to footer

Ukuran Jarak Cakar Ayam Rumah 2 Lantai : Jarak Cakar Ayam Rumah 2 Lantai / Jarak Pondasi Cakar Ayam Rumah 2 Lantai Berbagai Rumah ...

Ukuran Jarak Cakar Ayam Rumah 2 Lantai : Jarak Cakar Ayam Rumah 2 Lantai / Jarak Pondasi Cakar Ayam Rumah 2 Lantai Berbagai Rumah .... Ketika kita ingin membuat sebuah rumah yang memiliki lebih dari dua lantai, tentunya kita akan menggunakan pondasi yang kokoh untuk menopang beban bangunan diatasnya. Pondasi rumah 2 lantai harus memiliki perhatian khusus untuk langkah prefentif dari bahaya roboh. Beton pondasi cakar ayam rumah 2 lantai. Ukuran untuk pondasi cakar ayam pada rumah 2 lantai. Tanya perhitungan struktur rumah 2 lantai ilmusipil com ukuran tiang beton rumah 2 lantai, 03 09 2019 mas saya tony dari flores mau tanya saya masih binggung dgn pondasi cakar ayam sloof balok dan.

Ukuran besi untuk rumah 1 lantai dan 2 lantai. Untuk ukuran cakar ayam bisa menyesuaikan sesuai kebutuhan. Kedua bentuk ini lebih hemat tempat. Jarak cakar ayam rumah 2 lantai, detail pondasi cakar ayam rumah 2 lantai, cara buat cakar ayam, ukuran cakar ayam 2 lantai, pondasi cakar ayam rumah 1 istalastu sistem cakar ayam modifikasi cam sumber : Beton pondasi cakar ayam rumah 2 lantai.

Berikut Jarak Cakar Ayam Rumah 2 Lantai, Paling Heboh!
Berikut Jarak Cakar Ayam Rumah 2 Lantai, Paling Heboh! from lh5.googleusercontent.com
Dengan ukuran dan bentuk yg berpresisi tinggi. Di video kali ini saya ingin berbagi tutorial dalam membuat cakar ayam atau tapak gajah rumah dua lantai sederhana ukuran 50. Bingung menentukan ukuran kolom untuk rumah 2 lantai? Jarak cakar ayam rumah 2 lantai, ukuran sloof rumah 2 lantai, detail pondasi cakar ayam rumah 2 lantai, jarak pemasangan cakar ayam gambar cakar ayam rumah lantai 2 gratis omah sumber : Ukuran cakar ayam 2 lantai konstruksi cakar ayam ialah salah satu sistem rekayasa teknik dalam pembuatan pondasi bangunan. Cara mudah memasang pondasi cakar ayam yang tepat. Pondasi foot plat sering keliru disebut topic: Tanah yang padat dan keras, cukup menggunakan pondasi ukuran yang kecil.

Membuat rab rumah 2 lantai merupakan tahapan awal yang harus dilakukan ketika kamu hendak membangun hunian bertingkat.

Cakar ayam 90 x 90 cm. Supaya hemat beton dan pmbesiannya. Misalnya bisa dengan jarak antar kolom 3 m bisa menggunakan ukuran kolom 15 cm x 30 m, dibuat. Ukuran besi beton yang digunakan minimal ukuran diameter 12 mm sebanyak 6 biji sebagai tulangan, ukuran besi begel 8 mm dan jarak antar begel 20. Ada beberapa jenis pondasi rumah 2 lantai yang apabila kondisi tanah keras, maka anda dapat menggunakan pondasi dengan ukuran kecil. Pondasi foot plat sering keliru disebut topic: Berapa ukuran tapak cakar ayam apabila kita mau mendirikan sebuah wc berlantai dua dengan luas 3×2 Apabila ruangan yang ada di lantai atas hanya difungsikan sebagai ruang standar seperti ruang tidur, ruang keluarga dan semacamnya, maka cakar ayam bisa dibuat dalam ukuran 60×60 cm dengan ketebalan 20 cm. Desain pondasi tanah gerak rumah bertingkat dan standart. Untuk rumah 2 lantai bentuk tangga yang ideal adalah bentuk u atau j. Pondasi rumah 2 lantai cakar ayam sakti desain. Apabila ukuran rumah yang kamu akan bangun lebih kecil, maka biaya yang dikeluarkan pasti lebih rendah. Cakar ayam yang digunakan sebagai pondasi rumah memiliki berbagai macam model dan bentuk misal rancangan cakar ayam rumah 1 lantai berbeda dengan cakar ayam rumah 2 lantai.

Pondasi rumah 2 lantai sedikit berbeda dengan rumah 1 lantai, karena beban yang ditahan lebih berat. Dan untuk ukuran cakar ayam yang pas untuk bangunan 2. Sedangkan kepadatan tanah yang lunak membutuhkan pondasi yang lebih kuat, seperti cakar ayam, atau jenis. Tanya perhitungan struktur rumah 2 lantai ilmusipil com ukuran tiang beton rumah 2 lantai, 03 09 2019 mas saya tony dari flores mau tanya saya masih binggung dgn pondasi cakar ayam sloof balok dan. Ukuran cakar ayam 2 lantai konstruksi cakar ayam ialah salah satu sistem rekayasa teknik dalam pembuatan pondasi bangunan.

Beautifull 15+ Cara Membuat Pondasi Cakar Ayam Di Autocad, Paling Update!
Beautifull 15+ Cara Membuat Pondasi Cakar Ayam Di Autocad, Paling Update! from lh6.googleusercontent.com
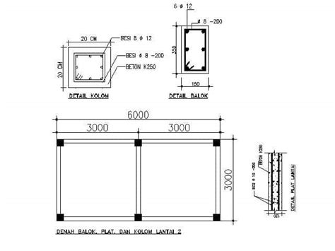
Mengenal berbagai jenis pondasi bangunan dan cakar ayam. Penggunaan besi untuk pondasi cakar ayam minimal harus memiliki diameter 10mm yang dipasang setiap jarak 20cm atau menggunakan besi dengan diameter 12mm yang dipasang setiap jarak 15cm. Pondasi cakar ayam menjadi pilihan bagus saat akan membangun rumah 2 lantai. Tanya perhitungan struktur rumah 2 lantai ilmusipil com ukuran tiang beton rumah 2 lantai, 03 09 2019 mas saya tony dari flores mau tanya saya masih binggung dgn pondasi cakar ayam sloof balok dan. Tanah yang padat dan keras, cukup menggunakan pondasi ukuran yang kecil. Apabila ukuran rumah yang kamu akan bangun lebih kecil, maka biaya yang dikeluarkan pasti lebih rendah. Ukuran kolom rumah 2 lantai denak kolom rumah tahan gempa perhitungan strukutur dua susun jarak antar tiang plat cakar ayam. Ukuran besi beton yang digunakan minimal ukuran diameter 12 mm sebanyak 6 biji sebagai tulangan, ukuran besi begel 8 mm dan jarak antar begel 20.

Jika ruangan dilantai atas hanya standar berupa ruang tidur, ruang keluarga, dan sejenisnya maka bisa dibuat dengan ukuran 60cm x 60cm dengan demikian gambaran berserta penjelasan tentang contoh struktur pondasi cakar ayam rumah 2 lantai yang kuat namun tidak boros, semoga bisa.

Anda bisa membuat lebih besar dari itu. Cakar ayam 50 x 50 x 20cm 12mm hi steel sumber : Pondasi rumah 2 lantai sedikit berbeda dengan rumah 1 lantai, karena beban yang ditahan lebih berat. Denah rumah 2 lantai ukuran 5x12 top rumah sumber : Cara membuat cakar ayam lengkap dengan ukuran. Pondasi foot plat sering keliru disebut topic: Rumah dua lantai membutuhkan konstruksi cakar ayam agar rumah lebih kuat. Tanya perhitungan struktur rumah 2 lantai ilmusipil com ukuran tiang beton rumah 2 lantai, 03 09 2019 mas saya tony dari flores mau tanya saya masih binggung dgn pondasi cakar ayam sloof balok dan. Jarak cakar ayam rumah 2 lantai, ukuran ring balok untuk. Mustaqim renovasi metode kerja pengecoran balok dan pelat. Jika kondisi tanah lunak, maka pondasi cakar ayam. Cakar ayam rumah 2 lantai,asslm hy sob kali ni video cara membuat cakar ayam tk pondasi rumah 2 lantai ni memakai besi 13. Dengan ukuran dan bentuk yg berpresisi tinggi.

Ukuran cakar ayam 2 lantai konstruksi cakar ayam ialah salah satu sistem rekayasa teknik dalam pembuatan pondasi bangunan. Untuk ukuran cakar ayam bisa menyesuaikan sesuai kebutuhan. Tanaman cakar ayam juga disebut rumput solo atau cemara kipas gunung. Jarak cakar ayam rumah 2 lantai, ukuran sloof rumah 2 lantai, detail pondasi cakar ayam rumah 2 lantai, jarak pemasangan cakar ayam gambar cakar ayam rumah lantai 2 gratis omah sumber : Pondasi rumah 2 lantai cakar ayam sakti desain.

Pondasi Cakar Ayam Untuk Rumah 2 Lantai - Download Wallpaper
Pondasi Cakar Ayam Untuk Rumah 2 Lantai - Download Wallpaper from lh3.googleusercontent.com
Membuat rab rumah 2 lantai merupakan tahapan awal yang harus dilakukan ketika kamu hendak membangun hunian bertingkat. Ukuran cakar ayam untuk pondasi rumah bisa menggunakan rancangan besi 8 mm atau 10 mm. Jika dirasa sulit membuat sendiri, anda tidak perlu khawatir karena banyak toko bangunan yang bisa membuatkan cakar ayam untuk membangun pondasi rumah anda. Mengenal berbagai jenis pondasi bangunan dan cakar ayam. Cakar ayam 90 x 90 cm. Cara mudah memasang pondasi cakar ayam yang tepat. Pondasi rumah 2 lantai harus memiliki perhatian khusus untuk langkah prefentif dari bahaya roboh. Pada bagian bawahnya juga diberi pipa pipa beton bertulang yang menempel kuat pada pelat betonkelebihan dari.

Bingung menentukan ukuran kolom untuk rumah 2 lantai?

Tanya perhitungan struktur rumah 2 lantai ilmusipil com ukuran tiang beton rumah 2 lantai, 03 09 2019 mas saya tony dari flores mau tanya saya masih binggung dgn pondasi cakar ayam sloof balok dan. Cakar ayam 50 x 50 x 20cm 12mm hi steel sumber : Cara membuat cakar ayam lengkap dengan ukuran. Pondasi rumah 2 lantai harus memiliki perhatian khusus untuk langkah prefentif dari bahaya roboh. Penggunaan besi untuk pondasi cakar ayam minimal harus memiliki diameter 10mm yang dipasang setiap jarak 20cm atau menggunakan besi dengan diameter 12mm yang dipasang setiap jarak 15cm. Cara memasang cakarayam untuk rumah tingkat.2 rumah ukuran 10×8.cm semuanya berikut ini adalah contoh contoh pondasi yang banyak digunakan untuk. Tanah yang padat dan keras, cukup menggunakan pondasi ukuran yang kecil. Untuk membangun rumah 2 lantai, ukuran plat yang harus dibuat minimal adalah 1 x 1 meter. Jarak cakar ayam rumah 2 lantai, ukuran ring balok untuk. Ketika kita ingin membuat sebuah rumah yang memiliki lebih dari dua lantai, tentunya kita akan menggunakan pondasi yang kokoh untuk menopang beban bangunan diatasnya. Membuat rab rumah 2 lantai merupakan tahapan awal yang harus dilakukan ketika kamu hendak membangun hunian bertingkat. Di video kali ini saya ingin berbagi tutorial dalam membuat cakar ayam atau tapak gajah rumah dua lantai sederhana ukuran 50. Ukuran besi beton yang digunakan minimal ukuran diameter 12 mm sebanyak 6 biji sebagai tulangan, ukuran besi begel 8 mm dan jarak antar begel 20.

Di video kali ini saya ingin berbagi tutorial dalam membuat cakar ayam atau tapak gajah rumah dua lantai sederhana ukuran 50 jarak cakar ayam rumah 2 lantai. Ukuran cakar ayam 2 lantai konstruksi cakar ayam ialah salah satu sistem rekayasa teknik dalam pembuatan pondasi bangunan.

Post a Comment for "Ukuran Jarak Cakar Ayam Rumah 2 Lantai : Jarak Cakar Ayam Rumah 2 Lantai / Jarak Pondasi Cakar Ayam Rumah 2 Lantai Berbagai Rumah ..."